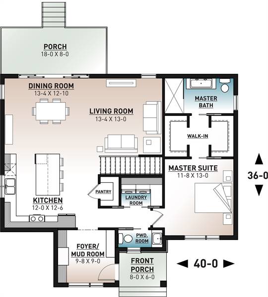
Superb Small Houses Floor Plans 8. Each is 1000 square feet or less. Small house plans generally caters filipino families with small budget since the total floor area is only 366 sqm.
Homes with open layouts have become some of the most popular and sought after house plans available today. Each is 1000 square feet or less. Large expanses of glass windows doors etc often appear in modern house plans and help to aid in energy efficiency as well as indooroutdoor flow.
Small house plans generally caters filipino families with small budget since the total floor area is only 366 sqm.
Browse hundreds of tiny house plans. Modern home plans present rectangular exteriors flat or slanted roof lines and super straight lines. Homes with open layouts have become some of the most popular and sought after house plans available today. So if you are toying with the idea of going tiny then definitely check these plans out.

